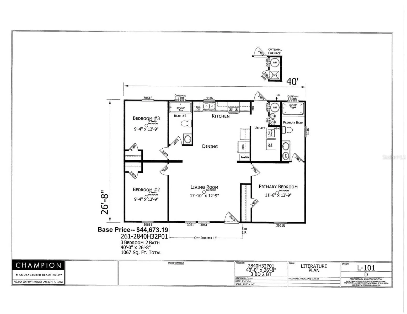
Property Description
Pre-Construction. To be built. 1909 Pleasure Dr, Holiday, FL, Brand New Living, Effortless Style. Welcome to your pristine, move-in-ready sanctuary in the heart of Holiday, Florida! This beautifully constructed, brand-new manufactured home offers the perfect balance of modern luxury and functional design. Boasting an open-concept layout, this 3-bedroom, 2-bathroom residence is designed for comfort, entertaining, and ease of living.
Step inside to find sleek, durable vinyl flooring that flows seamlessly throughout the entire home. The heart of the house is the chef-inspired kitchen, featuring brand-new stainless-steel appliances, a spacious center island with a breakfast bar, crisp shaker-style cabinets, and a convenient pantry—a dream space for any home cook. The living area creates an inviting atmosphere for hosting guests or relaxing after a day at the nearby Gulf Coast beaches. Retreat to the serene master suite, your private getaway complete with a large walk-in closet and a luxurious en-suite bathroom featuring a double-sink vanity and a walk-in shower. Two additional spacious bedrooms offer versatility for family, a home office, or guest quarters, with a secondary full bathroom conveniently nearby. Completing this home is a dedicated utility room, providing ample laundry space and extra storage. Whether you are looking for your first home or a turnkey Florida retreat, 1909 Pleasure Dr is an opportunity you don’t want to miss. Come see the quality and attention to detail for yourself!
Features
- Heating System:
- Central, Electric
- Cooling System:
- Central Air
- Fence:
- Vinyl
- Patio:
- Rear Porch, Front Porch
- Parking:
- Off Street, Parking Pad
- Architectural Style:
- Other
- Exterior Features:
- Private Mailbox, Other
- Flooring:
- Vinyl
- Interior Features:
- Open Floorplan, Thermostat, Eat-in Kitchen
- Laundry Features:
- Inside, Laundry Room, Electric Dryer Hookup, Washer Hookup
- Sewer:
- Septic Tank
- Utilities:
- Cable Available, Electricity Connected, Phone Available, Sewer Connected, Water Connected
- Window Features:
- ENERGY STAR Qualified Windows, Low-Emissivity Windows
Appliances
- Appliances:
- Range, Dishwasher, Refrigerator, Electric Water Heater
Address Map
- Country:
- US
- State:
- FL
- County:
- Pasco
- City:
- Holiday
- Subdivision:
- BUENA VISTA 2ND ADD
- Zipcode:
- 34691
- Street:
- PLEASURE
- Street Number:
- 1909
- Street Suffix:
- DRIVE
- Longitude:
- W83° 15' 15.6''
- Latitude:
- N28° 11' 11.9''
- Direction Faces:
- East
- Directions:
- From US-19, head west on Bonita Dr. Turn left onto Pleasure Dr. Property will be on your right.
- Mls Area Major:
- 34691 - Holiday/Tarpon Springs
- Zoning:
- R1MH
Neighborhood
- Elementary School:
- Gulfside Elementary-PO
- High School:
- Anclote High-PO
- Middle School:
- Paul R. Smith Middle-PO
Additional Information
- Lot Size Dimensions:
- 40x28
- Water Source:
- Public
- On Market Date:
- 2026-04-29
- Lot Features:
- Paved, Cleared, Level
- Levels:
- One
- Foundation Details:
- Concrete Perimeter, Crawlspace, Block
- Construction Materials:
- Vinyl Siding
- Building Size:
- 1067
Financial
- Tax Annual Amount:
- 1020
Listing Information
- List Agent Mls Id:
- 265578630
- List Office Mls Id:
- 255003741
- Listing Term:
- Cash,Conventional,FHA,Other,VA Loan
- Mls Status:
- Active
- Modification Timestamp:
- 2026-04-29T15:18:10Z
- Originating System Name:
- Stellar
- Special Listing Conditions:
- None
- Status Change Timestamp:
- 2026-04-29T13:23:56Z
Residential For Sale
1909 Pleasure Dr, Holiday, Florida 34691
3 Bedrooms
2 Bathrooms
1,067 Sqft
$210,999
Listing ID #P4938575
Basic Details
- Property Type :
- Residential
- Listing Type :
- For Sale
- Listing ID :
- P4938575
- Price :
- $210,999
- Bedrooms :
- 3
- Bathrooms :
- 2
- Square Footage :
- 1,067 Sqft
- Year Built :
- 2026
- Lot Area :
- 0.09 Acre
- Full Bathrooms :
- 2
- New Construction Yn :
- 1
- Property Sub Type :
- Manufactured Home
- Roof:
- Shingle
