Property Description
1.49-ACRE WATERFRONT MASTERPIECE in BAHAMA SHORES, ST PETE. – Construction Plans Included
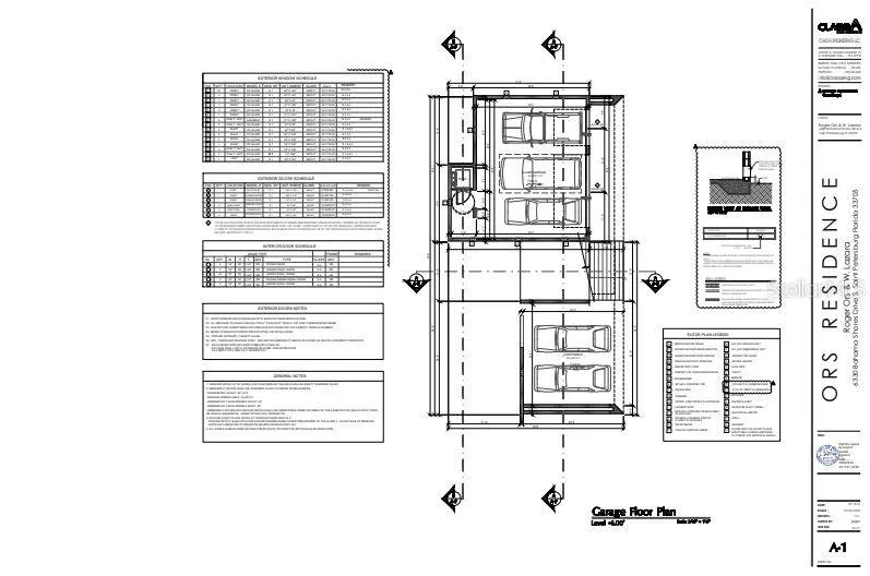
This expansive 1.49-acre lot on Bahama Shores Drive presents a rare, shovel-ready opportunity to build a premier coastal estate on the open waters of Tampa Bay. With the previous structure cleared and a comprehensive set of modern-contemporary architectural plans already in hand, the most complex stages of development are complete, allowing for an immediate transition into construction.
* Oversized Estate Lot:
Spanning nearly an acre and a half with 100 feet of direct water frontage and a depth of 200 feet, this property offers a level of scale and privacy that is increasingly difficult to find in St. Petersburg. The generous lot size provides ample room for the proposed contemporary residence while maintaining significant outdoor space for custom landscaping, sprawling lawns, or additional waterfront amenities.
Architectural Vision & Elevated Design
The included plans detail a sophisticated one-story contemporary residence meticulously designed for this specific site. To ensure longevity and modern compliance, the design features a specialized flood vent plan. This engineered approach raises the finished floor elevation above the flood plain while maintaining the sleek, accessible, and high-ceiling profile of a modern single-story home, allowing for discounted flood insurance.
* Unrivaled Views & Deep Water Infrastructure:
Positioned to capture panoramic, unobstructed views of Tampa Bay, the property offers a front-row seat to the region’s most iconic vistas.
* Sunshine Skyway Views: Enjoy a dramatic, direct line of sight to the Sunshine Skyway Bridge—a breathtaking backdrop for sunsets and evening lights.
* Existing Deep-Water Dock:
The property features an existing private dock, providing immediate deep-water access for large vessels with no fixed bridges to the Gulf. Ownership vs. Riparian Rights
While most Florida waterfront owners only own to the Mean High Water Line (MHWL) and have “riparian rights” to build a dock, the public record for this specific address shows a 1.49-acre lot.
Submerged Land Ownership: The legal description indicates the property line extends approximately 200 feet deep into the bay, covering roughly 65,113 square feet of total area, without the need for a submerged land lease.
The “Gap” Advantage: Unlike neighbors who may need to lease sovereign submerged land from the State of Florida to build long docks, your boundary likely encompasses the seabed itself, simplifying the control you have over the submerged portion of your lot.
* Premier Location:
Nestled in the prestigious Bahama Shores neighborhood, you are just 10 minutes from the cultural and dining scene of Downtown St. Petersburg and 15 minutes from the world-class beaches of St. Pete Beach, 20 minutes to St. Pete/Clearwater Airport (PIE), 27 minutes to Tampa International Airport (TPA),
** Skip the years of architectural design and permitting hurdles. With a 1.49-acre canvas and a full set of plans ready for execution, you can begin building your legacy waterfront estate today. **
Features
- Sewer:
- Public Sewer
- Utilities:
- Electricity Available, Sewer Available, Water Available
- Waterfront Features:
- Bay/Harbor
Address Map
- Country:
- US
- State:
- FL
- County:
- Pinellas
- City:
- St Petersburg
- Subdivision:
- BAHAMA BEACH REPLAT
- Zipcode:
- 33705
- Street:
- BAHAMA SHORES
- Street Number:
- 6330
- Street Suffix:
- DRIVE
- Longitude:
- W83° 21' 52.9''
- Latitude:
- N27° 42' 37.7''
- Directions:
- From Bay Vista Fundamental Elementary School (5900 Dr. M.L.K. Jr St S, St. Petersburg, FL 33705, United States) head toward 58th Ave S, turn left onto 58th Ave S, turn left at the 1st cross street onto 9th St S/Dr. M.L.K. Jr St S, turn left onto 62nd Ave S, turn right onto 4th St S, turn left onto Bahama Shores Dr S, turn right, destination will be on the right.
- Mls Area Major:
- 33705 - St Pete
- Street Dir Suffix:
- S
Neighborhood
- Elementary School:
- Bay Vista Fundamental-PN
- High School:
- Lakewood High-PN
- Middle School:
- Bay Point Middle-PN
Additional Information
- Lot Size Dimensions:
- 100x200
- Water Source:
- Public
- Water Body Name:
- TAMPA BAY
- Virtual Tour:
- https://www.propertypanorama.com/instaview/stellar/TB8469163
- On Market Date:
- 2026-02-01
- Lot Features:
- Paved, Cleared, Level, City Limits, Near Public Transit
- Current Use:
- Residential
Financial
- Tax Annual Amount:
- 28726.58
Listing Information
- List Agent Mls Id:
- 261552498
- List Office Mls Id:
- 773203
- Listing Term:
- Cash,Conventional,Other,VA Loan
- Mls Status:
- Active
- Modification Timestamp:
- 2026-02-02T04:02:10Z
- Originating System Name:
- Stellar
- Special Listing Conditions:
- None
- Status Change Timestamp:
- 2026-02-02T00:35:41Z
Land For Sale
6330 Bahama Shores Dr S, St Petersburg, Florida 33705
1.49 Acre
$1,900,000
Listing ID #TB8469163
Basic Details
- Property Type :
- Land
- Listing Type :
- For Sale
- Listing ID :
- TB8469163
- Price :
- $1,900,000
- View :
- Water
- Lot Area :
- 1.49 Acre
- Waterfront Yn :
- 1
