Property Description
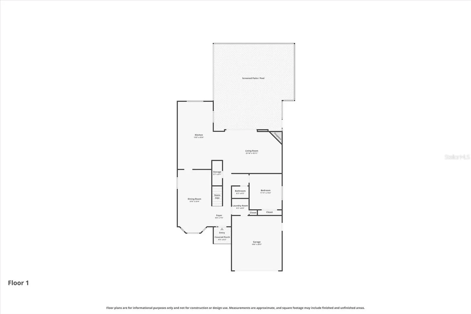
Under contract-accepting backup offers. BRAND NEW ROOF AND PRICE IMPROVEMENT! Welcome to Bridlewood at Tarpon Woods in Palm Harbor, FL, where space, style, and location come together in this beautifully maintained 4 bedroom, 2.5 bath, 2 car garage pool home offering over 3, 000 square feet of living space. With low HOA fees and key updates including A/C (2020), water heater (2025), newer appliances, and a freshly painted exterior in (2026), this home is move-in ready and designed for comfortable Florida living. A grand two-story entry welcomes you into a spacious formal living and dining room, perfect for entertaining. The open-concept layout flows seamlessly into the kitchen featuring granite countertops, white cabinetry, tile flooring, stainless steel appliances, a breakfast bar, and an eat-in space overlooking the pool and pond. The kitchen opens to a large family room with a wood-burning fireplace, vaulted ceilings, and sliding glass doors leading to the covered lanai and sparkling pool. Enjoy serene pond views and a beautifully landscaped backyard, creating the perfect outdoor retreat. Upstairs, a catwalk overlooks the family room, enhancing the home’s open feel and architectural appeal while connecting the spacious guest bedrooms, including the primary suite. The primary bedroom is located upstairs and offers a private ensuite bath with dual sinks, granite counters, a soaking tub, and a separate walk-in shower. A first-floor bedroom, currently used as a home office, provides flexibility for guests or remote work. Additional guest bedrooms are generously sized, offering plenty of space for family and visitors. Located in the desirable Bridlewood community, this home is close to top-rated schools, parks, golf courses, shopping, dining, and the Gulf beaches. Enjoy easy access to major roadways, making commuting to Tampa and surrounding areas convenient while still enjoying the charm of Palm Harbor living.
Features
- Swimming Pool:
- In Ground, Gunite
- Heating System:
- Central
- Cooling System:
- Central Air
- Fireplace:
- Family Room, Wood Burning
- Patio:
- Covered, Screened
- Exterior Features:
- Lighting, Private Mailbox
- Flooring:
- Carpet, Tile
- Interior Features:
- Ceiling Fans(s), Open Floorplan, Walk-In Closet(s), Eat-in Kitchen, Kitchen/Family Room Combo, PrimaryBedroom Upstairs
- Laundry Features:
- Inside, Laundry Room
- Pool Private Yn:
- 1
- Sewer:
- Public Sewer
- Utilities:
- Cable Available, Electricity Connected
- Waterfront Features:
- Pond
- Window Features:
- Blinds
Appliances
- Appliances:
- Range, Dishwasher, Refrigerator, Washer, Dryer, Electric Water Heater, Microwave, Disposal
Address Map
- Country:
- US
- State:
- FL
- County:
- Pinellas
- City:
- Palm Harbor
- Subdivision:
- BRIDLEWOOD AT TARPON WOODS PH II
- Zipcode:
- 34685
- Street:
- SADDLEWOOD
- Street Number:
- 2487
- Street Suffix:
- LANE
- Longitude:
- W83° 19' 8.1''
- Latitude:
- N28° 5' 15.3''
- Direction Faces:
- East
- Directions:
- East Lake Rd turn left on Tarpon Woods Blvd. Turn Left on Stag Thicket Ln. Turn right on Saddlewood Ln.
- Mls Area Major:
- 34685 - Palm Harbor
- Zoning:
- RPD-2.5_1.
Neighborhood
- Elementary School:
- Cypress Woods Elementary-PN
- High School:
- East Lake High-PN
- Middle School:
- Carwise Middle-PN
Additional Information
- Lot Size Dimensions:
- 85x140
- Water Source:
- Public
- Virtual Tour:
- https://lightlineproductions.hd.pics/2487-Saddlewood-Ln/idx
- Previous Price:
- 710000
- On Market Date:
- 2026-04-07
- Lot Features:
- Paved
- Levels:
- Two
- Garage:
- 2
- Foundation Details:
- Slab
- Construction Materials:
- Block, Concrete, Stucco
- Building Size:
- 3804
- Attached Garage Yn:
- 1
Financial
- Association Fee:
- 496
- Association Fee Frequency:
- Annually
- Association Yn:
- 1
- Tax Annual Amount:
- 4803
Listing Information
- List Agent Mls Id:
- 260035755
- List Office Mls Id:
- 285513935
- Listing Term:
- Cash, Conventional, FHA, VA Loan
- Mls Status:
- Pending
- Modification Timestamp:
- 2026-05-19T18:21:12Z
- Originating System Name:
- Stellar
- Special Listing Conditions:
- None
- Status Change Timestamp:
- 2026-05-19T13:44:55Z
Residential For Sale
2487 Saddlewood Ln, Palm Harbor, Florida 34685
4 Bedrooms
3 Bathrooms
3,004 Sqft
$685,000
Listing ID #W7884593
Basic Details
- Property Type :
- Residential
- Listing Type :
- For Sale
- Listing ID :
- W7884593
- Price :
- $685,000
- View :
- Pool
- Bedrooms :
- 4
- Bathrooms :
- 3
- Half Bathrooms :
- 1
- Square Footage :
- 3,004 Sqft
- Year Built :
- 1993
- Lot Area :
- 0.27 Acre
- Full Bathrooms :
- 2
- Property Sub Type :
- Single Family Residence
- Roof:
- Shingle
- Waterfront Yn :
- 1
